卓信大厦

成功出租广告 滨江区 滨江*萧山 非中介 写字楼
写字楼信息编号:x32162 VIP第5 发布:浙江卓信科技股份有限公司 更新时间:2011-03-08

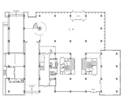
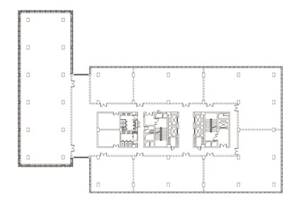
楼盘图

商情图

  • 招商面积
    30000㎡ 建筑面积(可分租 可注册)
  • 租售价格
    面议
  • 所在楼层
     入住时间:随时
  • 楼盘地址
    南环路高新软件园内(紧邻福朋喜来登酒店)
  • 装修状况
    精裝修(公共部分)
  • 基本租期
    3年
  • 业务咨询
    0571-87989936  QQ:545669611
招商说明

整层及以上客户价格面议。













配套信息
  • 物管公司浙江中天物业管理有限公司
  • 物 管 费3.6元/月/㎡(不含公共能耗费)
  • 楼层状况地上15层、地下1层
  • 总 建 面约36000㎡
  • 开 发 商浙江卓信科技股份有限公司
  • 标准层建面近2000㎡
  • 标准层高3.9m
  • 开间建面最小分割面积约140平方米
  • 车位数量130个
  • 车 位 费地下350元/月,地上200元/月
  • 空    调日立SFT-FREE变频多联式智能空调
  • 电    梯四台三菱MAXIEZ高性能電梯
  • 员工餐厅有(二楼)
  • 交通站点南环路公交站、公交南环路站
  • 轨道交通
  • 公交路线197、B支3、706、116、226(夜间线)、K566、107
楼盘介绍

    卓信大厦位于杭州市滨江区高新技术开发园区,大楼总高近60米,为地下一层,地上15层建筑,总建筑面积3.6万余平方米,大楼由著名的建筑设计单位—中国美术学院风景建筑设计研究院设计,卓信大厦将成为滨江高新技术开发园区,集研发、办公、商务于一体的高档智能建筑大楼。
    大厦商务功能布局 
    地下一层:地下停车库 
    地下二层:员工餐厅、商务休闲吧、多功能会议厅 
    地上一层:华润超市精品店
    地上三到十五层:商务办公区 

地理位置