



云州国际中心:坐拥城西科创大走廊,紧邻天目里,西畔西溪湿地,汇集商务办公、精品商业于一体,以智能体系塑造智慧办公场景,打造时代商务办公新模式。
10万方新锐办公的美学赋能
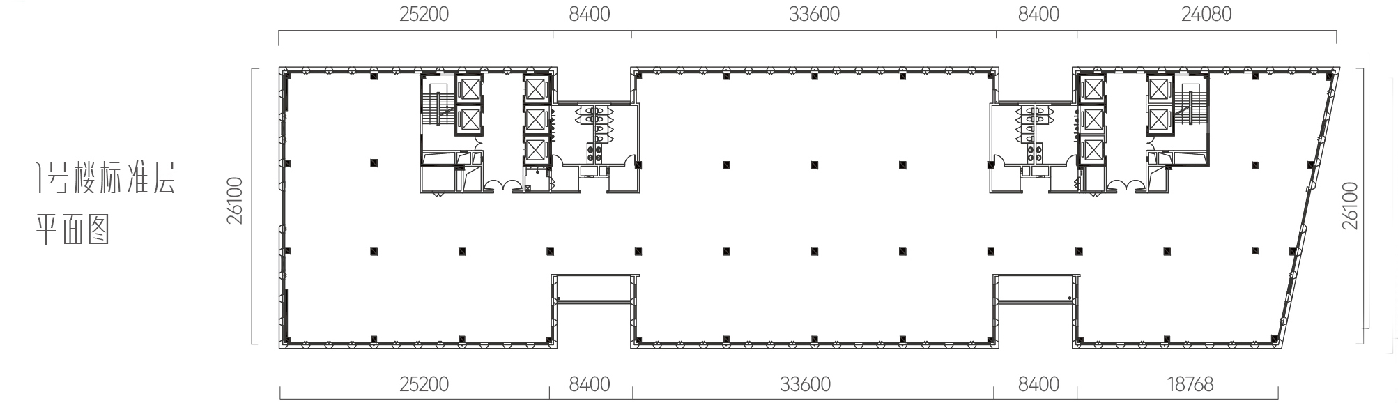
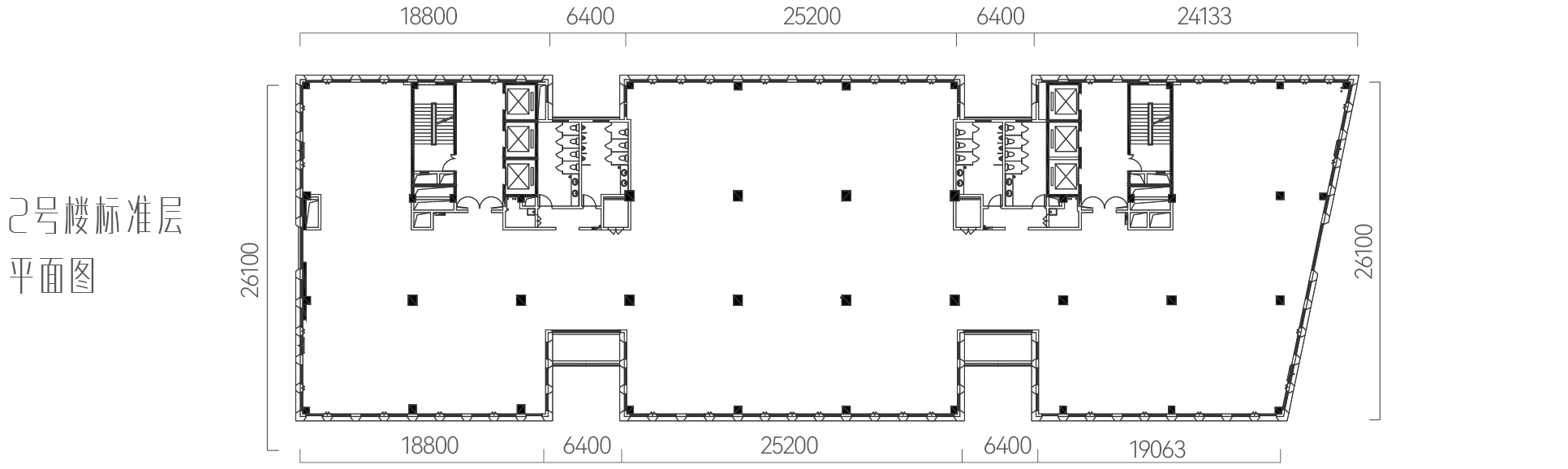
• 建面约56000㎡企业总部型商务样板
高端商务空间,擘画互联网科创产业的璀璨封面,立新超A级商务范本,打造省内乃至全国优秀企业办公首选地。
• 建面约6000㎡优质商务配套园区
进行业态扩充升级,精筛受欢迎度高的流量品牌体验店入驻,包括咖啡茶饮、主题餐饮、健身美容等,满足娱乐社交等办公衍生需求。
• 建面约10000㎡新锐文化体验式街区
将传统下沉广场商业突破创新,升级打造集精品超市、文创集市、精品餐饮等为一体的沉浸式共享街区,满足商务办公人群及周边居民的生活需求。
• 建面约5000㎡中央景观会客厅
区别于传统封闭式写字楼,中央景观充分融入开放的全生活理念,兼具休闲、观赏、会客等功能,让园区焕发全维多元的活力与生机。
• 建面约2500㎡共享空中花园
打造瑰丽的屋顶共享空中花园,璀璨天际宛若可摘星,且可360°全景远眺,极目饱览西溪湿地、西湖群山等美景,将成为办公之余暇的日常。
• 多维路网 高效出行
近3号线古墩路地铁站,机场轨道快线即将建成,双地铁助力高效出行。
• 商业云集 聚揽奢配
天目里艺术综合体、西溪天堂、黄龙万科中心等鼎盛荟萃,坐拥一城繁华。
• 名企荟萃 科创封面
城西科创大走廊起点,更有蚂蚁总部、浙江大学高等学府给予强力支撑,人力、科技、产业、知识资源汇聚。
• 富氧滨水 湿地生态
毗邻西溪湿地及“天然氧吧”迭新绿色生态办公新浪潮。


